Description
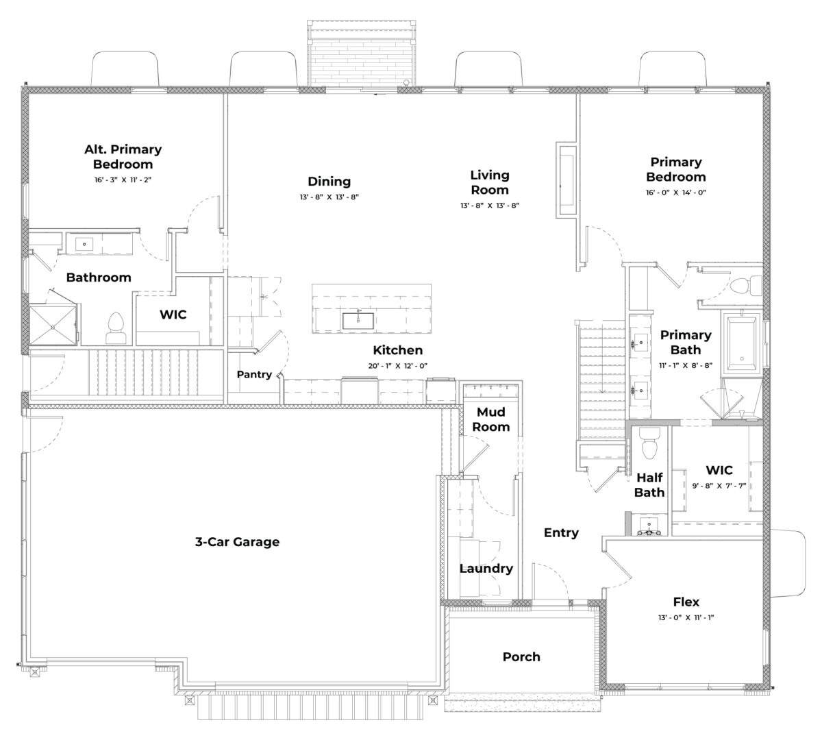
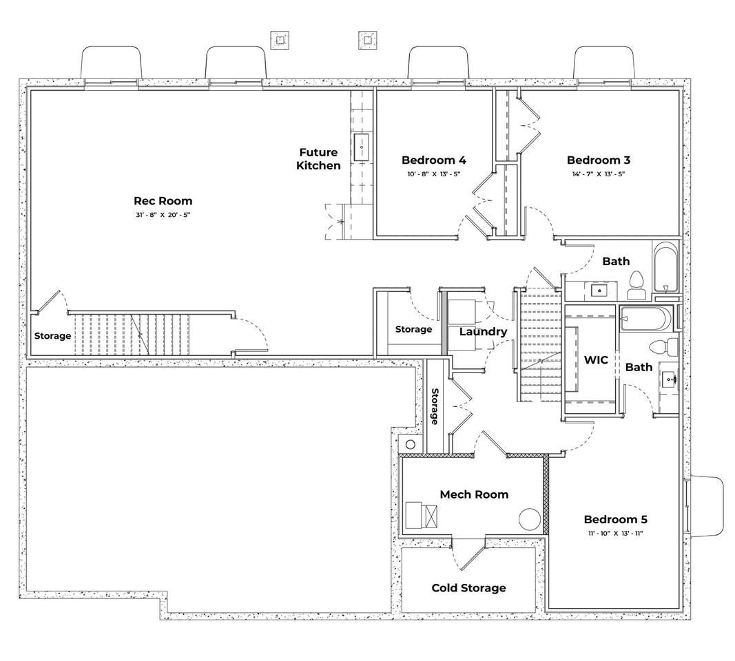
Spacious and versatile, this 5-bedroom, 4.5-bath Henry floor plan offers 4,383 sq. ft. of thoughtfully designed living space with a 3-car garage and flexible areas to suit your lifestyle. Featuring two primary suites on the main floor, this home provides ultimate convenience and privacy. The lower level includes three additional bedrooms with potential for a future mother-in-law suite or ADU, complete with a separate exterior entry, dedicated laundry room, and kitchen roughed-in for independent living. The main-level kitchen is a chef's dream, showcasing a gorgeous layout with a huge island, perfect for entertaining. Primary bathrooms include both a shower and tub along with generous walk-in closets. Come see the beautiful model home and ask me about our Preferred Lender incentive! This home is currently under construction, and photos will be updated as progress continues. Don't miss the chance to make this stunning, multi-functional home yours in the desirable Jordan River Heights community.
-
5BEDS
-
0.2ACRES
-
4BATHS
-
11/2 BATHS
-
4,383SQFT
-
$262$/SQFT
School Information
Description
Spacious and versatile, this 5-bedroom, 4.5-bath Henry floor plan offers 4,383 sq. ft. of thoughtfully designed living space with a 3-car garage and flexible areas to suit your lifestyle. Featuring two primary suites on the main floor, this home provides ultimate convenience and privacy. The lower level includes three additional bedrooms with potential for a future mother-in-law suite or ADU, complete with a separate exterior entry, dedicated laundry room, and kitchen roughed-in for independent living. The main-level kitchen is a chef's dream, showcasing a gorgeous layout with a huge island, perfect for entertaining. Primary bathrooms include both a shower and tub along with generous walk-in closets. Come see the beautiful model home and ask me about our Preferred Lender incentive! This home is currently under construction, and photos will be updated as progress continues. Don't miss the chance to make this stunning, multi-functional home yours in the desirable Jordan River Heights community.
Based on information from the Wasatch Front Regional Multiple Listing Service, Inc. as of 2026-04-20T14:40:35.38. All data, including all measurements and calculations of area, is obtained from various sources and has not been, and will not be, verified by broker or the MLS. All information should be independently reviewed and verified for accuracy. Properties may or may not be listed by the office/agent presenting the information.The information provided is for consumers' personal, non-commercial use and may not be used for any purpose other than to identify prospective properties consumers may be interested in purchasing. Information deemed reliable but not guaranteed accurate. Buyer to verify all information.
